Villa Krašica bei Buje mit Meerblick
- €1.180.000
Villa Krašica bei Buje mit Meerblick
- €1.180.000
Beschreibung
Moderne Villa mit Meerblick in ruhiger Panoramalage
In idyllischer Lage im Dorf Krašica bei Buje, umgeben von Olivenhainen, Weinbergen und unberührter Natur, befindet sich diese freistehende Villa in der finalen Bauphase. Die Immobilie überzeugt durch offenen Meerblick, großzügige Architektur und ein hohes Maß an Privatsphäre.
Die gesamte Nettonutzfläche beträgt ca. 430 m², davon rund 280 m² Wohnfläche sowie ca. 149 m² Terrassenflächen. Das Raumkonzept erstreckt sich über drei Ebenen:
Im Untergeschoss befinden sich eine Garage für zwei Fahrzeuge, Technikräume sowie ein zusätzlicher Raum, der flexibel als Fitnessbereich, Sauna oder Weinkeller genutzt werden kann.
Das Erdgeschoss bietet einen großzügigen, offenen Wohn- und Essbereich mit integrierter Küche, ein Gäste-WC sowie direkten Zugang zur weitläufigen Terrasse und zum privaten Swimmingpool (ca. 35 m²) mit Blick auf das Meer und die umliegende Landschaft.
Im Obergeschoss stehen drei geräumige Schlafzimmer zur Verfügung, jeweils mit eigenem Badezimmer en suite und Zugang zu einer Terrasse.
Für ganzjährigen Wohnkomfort sorgen Fußbodenheizung über Wärmepumpe sowie Klimaanlagen in allen Räumen. Im Wohnbereich besteht die Möglichkeit zur Installation eines Kamins. Die Villa wird unmöbliert verkauft und bietet dem künftigen Eigentümer maximale Gestaltungsfreiheit. Eine Ausstattung gemäß Visualisierungen kann in Abstimmung mit dem Investor realisiert werden.
Die Strände und das Meer sind in etwa 15 Autominuten erreichbar. Dank der ruhigen Lage und der hochwertigen Ausführung eignet sich diese Immobilie sowohl als exklusives Wohnhaus als auch als renditestarke Investition im gehobenen touristischen Vermietungssegment.
Der Kaufpreis der unmöblierten Villa beträgt 1.180.000 € inkl. Mehrwertsteuer. Eine Zahlung nach Baufortschritt ist möglich. Die Eigentumsdokumentation ist vollständig und geordnet.
Adresse
Auf Google Maps öffnen-
Stadt: Buje
-
Region: Nord-Istrien
-
PLZ: 52460
-
Land: Kroatien
Details
Updated on März 11, 2026 at 12:07 p.m.-
Objekt-ID VI-KR-010
-
Verkaufspreis €1.180.000
-
Wohnfläche 430 m²
-
Grundstücksfläche 450 m²
-
Schlafzimmer 3
-
Räume 4
-
Badezimmer 4
-
Garagen | Parkplätze 2
-
Baujahr 2024
-
Immobilientyp Villen
-
Immobilienstatus Neubau, Zum Kaufen
Weitere Details
-
Energieeffizienzklasse A+
-
In der Nähe Öffentlicher Strand
Immobiliendetails
Grundriss
Description:
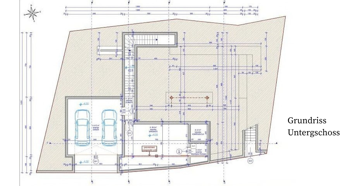
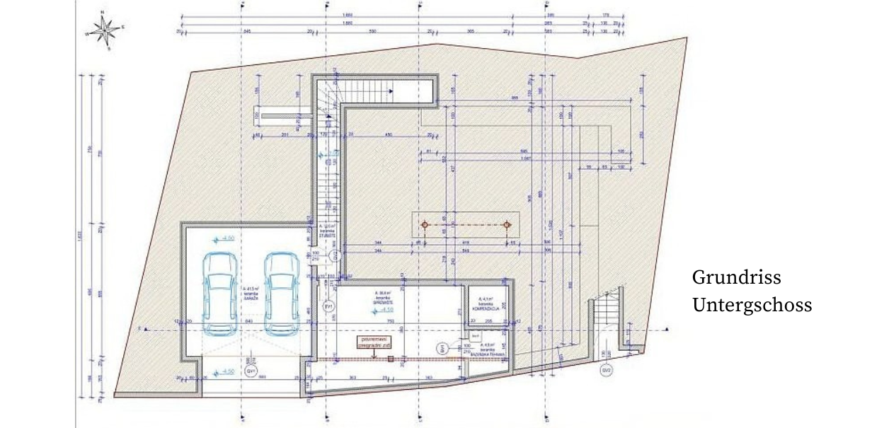
Im Untergeschoss befindet sich der funktionale Bereich der Villa. Hier stehen eine großzügige Garage mit Platz für zwei Fahrzeuge, Technikräume sowie zusätzliche Nutzflächen zur Verfügung. Ein weiterer Raum kann flexibel genutzt werden – beispielsweise als Fitnessbereich, Sauna oder Weinkeller. Der direkte Zugang zum Treppenhaus verbindet diese Ebene komfortabel mit den Wohnbereichen der oberen Geschosse.
- 1
Description:
Das Erdgeschoss bildet den zentralen Wohnbereich der Villa und überzeugt durch ein offenes, modernes Raumkonzept. Der großzügige Wohn- und Essbereich mit integrierter Küche öffnet sich über große Glasflächen zur weitläufigen Terrasse und zum privaten Swimmingpool mit Blick auf das Meer und die umliegende Landschaft. Ergänzt wird diese Ebene durch einen Eingangsbereich, ein Gäste-WC sowie zusätzliche Nebenräume.
- 3
- 3
Description:
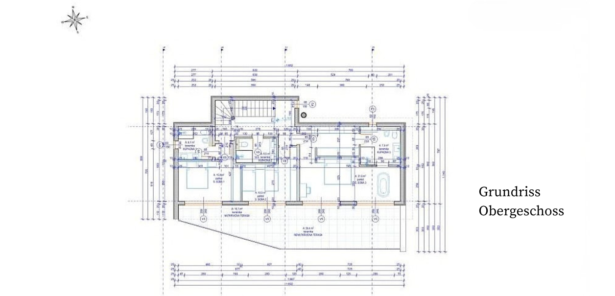
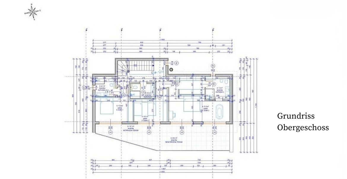
Im Obergeschoss befindet sich der private Schlafbereich der Villa. Drei großzügige Schlafzimmer verfügen jeweils über ein eigenes Badezimmer en suite und direkten Zugang zu Terrassen mit Panoramablick auf das Meer und die istrische Landschaft. Die klare Raumaufteilung sorgt für Privatsphäre und hohen Wohnkomfort und eignet sich ideal sowohl für die Eigennutzung als auch für eine hochwertige Ferienvermietung.
Kontaktinformationen
Alle Objekte ansehenÄhnliche Immobilien
Villa Grožnjan mit Pool & Sauna
52429, Grožnjan, Općina Grožnjan, Istarska županija, Hrvatska Details
- Andreas Kricej